16 Mar 2026
Mixed-Use Development Proposed Along Irving Park
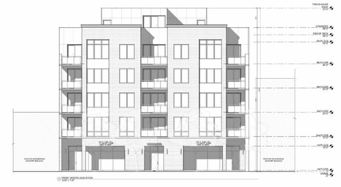
Plans have been revealed for a mixed-use development at 3007 West Irving Park Road in the Irving Park neighborhood. Located near the intersection with North Sacramento Avenue and just steps from Horner Park, the proposal would replace a pair of existing mixed-use buildings whose ground-floor retail space has been vacated.

